伝統的な和のテイストに
快適な眠りを約束する
ベッドを配置。
独自の組み合わせが、
和室の落ち着いた雰囲気と
洋室の快適さで
特別な滞在を
お過ごしいただけます。
ベッドルームは和風のたたずまい(シモンズ製ベッド)
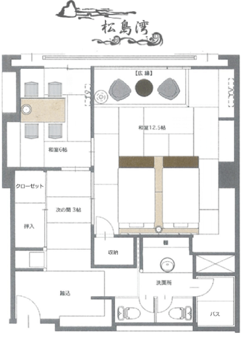
6帖和室(畳リビング)
和の伝統的設計テイストを活かしつつ、
洋のエッセンスを取り入れたくつろぎの空間をお楽しみいただけます。



【仕様・設備】
和室12.5帖(ツインベッド)+和室6帖+副室3帖 / 大窓から松島湾を見渡すパノラビュー / AD CORE 瀬戸 昇 氏プロデュースのオリジナルインテリア / 50型4Kテレビ / BOSE製CDプレーヤー / シモンズ製ダブルベッド / 照度調整機能付照明 / 洗面台 / 温水洗浄便座付トイレ / 空気洗浄機 / ドライヤー / インターネット接続可能
このお部屋にご宿泊の際、公式ホームページでご予約いただくと貸切風呂の事前予約ができます。
ご宿泊予約時にお電話にてお申し込みください。
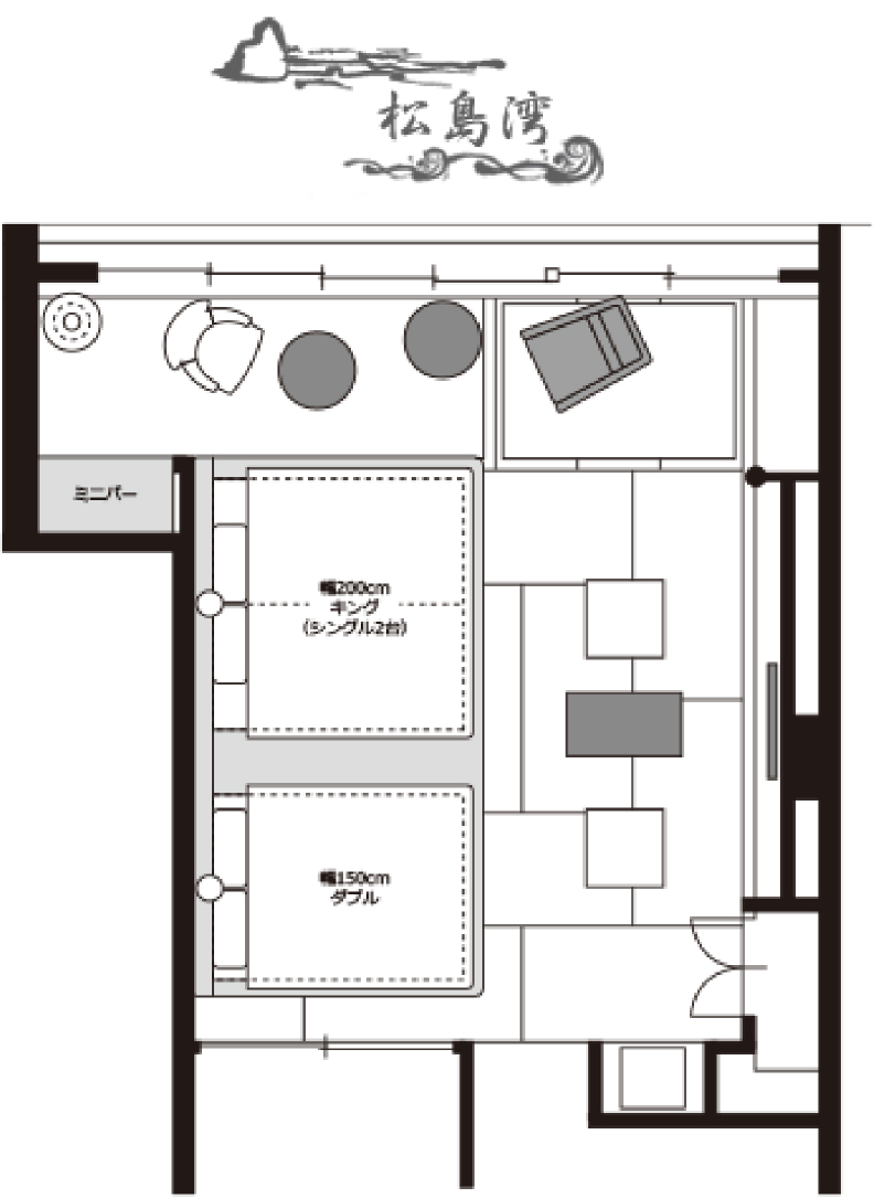
幅200cmのキングサイズベッドと幅150cmのダブルベッド
色々なベッドアレンジでさまざまな使い方が出来る二人静(ふたりしずか)。キングベッド&ダブルベッドが和のテイストをベースにしながら、これまでにない上質な寛ぎをお約束します。海を見ながら、最上級のゆったり時間をお楽しみください。

【仕様・設備】
和室12.5帖(ツインまたはトリプルベッド)キングベッド幅は98cmのシングルベッド2つに、4名様ご利用時にはエキストラベッドを設置 / 各種お飲み物を揃えたお洒落なミニバー / 大窓から松島湾を見渡すパノラマビュー / AD CORE 瀬戸 昇 氏プロデュースのオリジナルインテリア / 50型4Kテレビ / 洗面台 / 温水洗浄便座付トイレ / 空気洗浄機 / ドライヤー / インターネット接続可能



海色(うみいろ)は和の風情をいかしたベッドルームタイプの客室です。窓から朱色が印象的な松島のランドマーク福浦橋と福浦島を望むコーナーツインです。お二人様から、お子様連れのお客様に最適です。
・ご滞在中のシーン(時間)によって照明がお好みに調整できます。
・内風呂はありませんが、オーバーヘッドタイプの独立シャワーブースが用意されています。
・3名様の場合、エキストラベッドをご用意します。

【仕様・設備】
和室10帖 / 照度調整機能付き照明 / 洗面台 / 温水洗浄便座付トイレ / シャワーブース / ドライヤー / インターネット接続可能
和室のしつらえの中に、ローベッドの寝具が用意されている「和モダン客室」です。
美しい松島の景色がお楽しみいただけます。

【仕様・設備】
洋風客室27㎡ / FUTON-BED / 海と松を臨むテーブルコーナー / 洗面台 / 温水洗浄便座付トイレ / シャワーブース/ 空気洗浄機 / ドライヤー /インターネット接続可能